特點
海灣GST-LD-N8402(Ex)電源隔離式安全柵采用隔離式安全柵設計方案,為本安系統中本安側設備提 供 DC24V。安全柵應安裝在安全區域。安全柵采用隔離式設計,不需要接地。
主要技術指標
(1) 工作電壓: DC24V;允許范圍:DC20V~DC28V
(2) 工電電流:<150mA
(3) 設備容量:最多可配接 2 只 GST-HX-MN100C(Ex)火災聲光警報器。
(4) 本安參數:Um: 250V Uo:28V Io:115mA Po:0.8W Co:0.083μF Lo:4mH
(5) 使用環境:溫度: -10℃~+55℃ 相對濕度≤95%,不凝露
(6) 安全柵防護等級:IP30
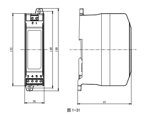
(7) 安全柵外形尺寸:150mm×97mm×36mm
結構特征、安裝與布線
(1) 安全柵的外形示意圖如圖 1-31 所示。

安裝
安全柵可以直接安裝于寬度為 35mm 的標準 DIN 導軌,如圖 1-32 所示。在不具備導軌安 裝條件時,可以通過上下兩個安裝孔,使用 M4 螺釘或 ST4.2 自攻螺釘(可選配塑料膨脹管) 進行安裝,如圖 1-33 所示。

接線
安全柵端口通過插拔式端子(包括端子頭和端子座)同其他設備連接,將電纜線安裝在端 子頭上后,端子頭正確插在端子座上確定穩固連接即可。
端子說明
接線端子如圖 1-34 所示。

D1、D2:DC24V 電源輸入,無極性
O+、O-:本安電源輸出
注意:安全柵應安裝在安全區域,本安側和非本安側接線應分開,并保持一定距離(至少為 50mm)。
布線要求 電源線 D1、D2 采用耐火 BV 線,截面積≥1.5mm2 。安全柵至本安編碼設備應選用截面積≥1.0mm2 的本安電纜,且電纜間分布電容不得大于 0.083μF,分布電感不得大于 4.0mH。
應用方法
每個電源隔離式安全柵最多可配接 2 只 HX-MN100C(EX)火災聲光警報器,安全柵應用示意圖 如圖 1-35 所示。



蘇公網安備32058102002318號
客服1